绿巨人成人官网绿巨人成人官网結構
在發展中國家,绿巨人成人官网廣泛用於煉油,長輸管道,化工,造紙,製藥,水利,電力,市政,鋼鐵等行業,在國民經濟中發揮著重要作用。

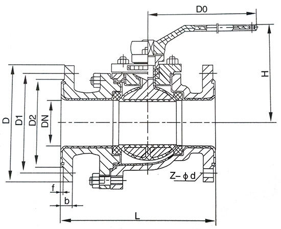
手動绿巨人成人官网绿巨人成人官网結構

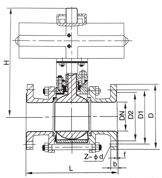
氣動绿巨人成人官网绿巨人成人官网結構
绿巨人成人官网的閥盤是帶有圓形通道的球體,該通道圍繞垂直於該通道的軸旋轉,並且球與閥杆一起旋轉以達到打開或關閉通道的目的。僅在90度旋轉操作和小旋轉扭矩的情況下,绿巨人成人官网才能緊密關閉。根據工作條件的要求,可以組裝不同的驅動裝置以形成具有不同控製方式的绿巨人成人官网,例如電動绿巨人成人官网,氣動绿巨人成人官网,液壓绿巨人成人官网等。

球閥的工作原理
由於绿巨人成人官网通常用橡膠、尼龍和聚四氟乙烯作為閥座密封圈材料,因此它的使用溫度受到閥座密封圈材料的限製。
又由於绿巨人成人官网的閥座密封圈通常采用塑料製成,故在選擇绿巨人成人官网的結構和性能上,要考慮绿巨人成人官网的耐火和防火,特別是在石油、化工、冶金等部門,在易燃、易爆介質的設備和管路係統中使用绿巨人成人官网,更應注意耐火和防火。
通常,在雙位調節、密封性能嚴格、泥漿、磨損、縮口通道、啟閉動作迅速(1/4轉啟閉)、高壓截止(壓差大)、低噪聲、有氣穴和氣化現象、向大氣少量滲漏,操作力矩小、流體阻力小的管路係統中,推薦使用绿巨人成人官网。
绿巨人成人官网也適用於輕型結構、低壓截止(壓差小)、腐蝕性介質的管路係統中。在低溫(深冷)裝置和管路係統中也可選用绿巨人成人官网。
在冶金行業的氧氣管路係統中,需使用經過嚴格脫脂處理的绿巨人成人官网。在輸油管線和輸氣管線中的主管線需埋設在地下時,需使用全通徑焊接式绿巨人成人官网。在要求具有調節性能時,需選用帶V形開口的專用結構的绿巨人成人官网。在石油、石油化工、化工、電力、城市建設中,工作溫度在200度以上的管路係統可選用金屬對金屬密封的绿巨人成人官网。
绿巨人成人官网的優點:
1.绿巨人成人官网不受安裝方向的限製,介質的流動方向可以是任意的。流體阻力小,全通徑绿巨人成人官网基本上沒有流動阻力。
2.绿巨人成人官网有兩個密封麵。目前,各種塑料被廣泛用於绿巨人成人官网的密封表麵材料,具有良好的密封性能,可以實現完全密封。它也廣泛用於真空係統。
3.绿巨人成人官网適合頻繁操作,啟閉迅速輕便。它易於操作,並且可以快速打開和關閉。從完全打開到完全關閉隻需旋轉90度,這對於長距離控製很方便。
4,該绿巨人成人官网結構簡單,密封圈一般可動,拆裝方便。
5.當閥門完全打開或關閉時,球和閥座的密封表麵應與介質隔離。當介質通過時,閥密封麵不會被腐蝕。
6.它可用於多種應用,例如直徑範圍從幾毫米到幾米,可以施加從高真空到高壓的壓力。
7.绿巨人成人官网由於在打開和關閉過程中具有擦拭特性,因此可用於具有固體懸浮顆粒的介質。
8.绿巨人成人官网流體阻力小,無振動,噪音低。

